產品型號:RS-WDM-*-4G/ETH
產品概述
我司研發的積水監測站由遠程遙測終端RTU、電子水尺、語音播報模塊、光報警模塊LED屏顯示模塊等組成。電子水尺通過485通信,將測量到的水位信息傳輸到遠程遙測終端,遙測終端將得到的水位值通過4G通訊模塊,再傳送給后臺服務器,然后傳送到微信小程序/云平臺網頁終端。同時可以將檢測到的水位值,實時顯示在LED屏上,水位超限會觸發號筒揚聲器和聲光報警器雙重報警。從而全面掌握城市內澇狀況、實現排水統籌調度,建立起城市內澇監測預警系統。
功能特點
可因地制宜選擇4G(全網通)、網口等上傳方式。
可外接顯示屏,實時顯示當前水位,超限變色顯示。
可外接語音播報及光報警器,實時水位預警。
自帶兩路繼電器輸出,可接外設擴展,支持平臺控制、自動等控制模式。
可通過手機配置軟件“藍牙app”進行配置參數。
可外接兩路室外LED雙色顯示屏,實現隧道兩端同時顯示實時水位值。
設備可設閾值,超限醒目提示,關聯光報警器、號筒揚聲器。
支持我司提供的多款軟件平臺、客戶自己的平臺。
設備支持遠程升級、支持二次開發。
交流220V供電、IP65防水等級,可常年工作于室外,不懼淋雨室外。
兼容多種立桿,安裝簡單靈活。
主要技術參數
標準版(96*16雙色屏)
| 供電 | AC220V | |
| 供電方式 | 市電或太陽能供電 | |
| 設備功耗 | ≤25 W | |
| 工作溫度 | -40—80℃ | |
| 設備接口 | 接口類型 | 說明 |
| RS-485主站接口 | 通過RS-485采集數據 | |
| LED屏顯示接口 | 雙色LED顯示屏(最大點數96*16) | |
| 1路485采集 | 最遠通信距離2000m | |
| 兩路開關量接口(預留) | 電壓輸入范圍:0~5V | |
| 兩路模擬量接口(預留) | 采集范圍:4-20mA、0-5V、0-10V默認4-20mA | |
| 一路水浸檢測(預留) | 可檢測有無水 | |
| 兩路繼電器接口 | 繼電器容量:250VAC/30VDC 3A 一路可設置有源無源,用作報警或自動控制 | |
| 報警設備 | 支持聲光報警 | 支持語音播報 |
| LED屏 | 尺寸102cm*22cm雙色屏 | |
| 設備支架 | 2m立桿 | |
| 電控箱 | 用于放置遠程遙測終端機、電源 | |
標準版(96*48單色屏)
| 供電 | AC220V | |
| 供電方式 | 市電或太陽能供電 | |
| 設備功耗 | ≤50 W | |
| 工作溫度 | -40—80℃ | |
| 設備接口 | 接口類型 | 說明 |
| RS-485主站接口 | 通過RS-485采集數據 | |
| LED屏顯示接口 | 單色LED顯示屏 (點陣數96*48) | |
| 1路485采集 | 最遠通信距離2000m | |
| 兩路開關量接口(預留) | 電壓輸入范圍:0~5V | |
| 一路模擬量接口(預留) | 采集范圍:4-20mA、0-5V、0-10V默認4-20mA | |
| 1路繼電器接口 | 繼電器容量:250VAC/30VDC 3A | |
| 1路有源輸出 | 輸出12V或24V | |
| 報警設備 | 支持聲光報警 | 支持語音播報 |
| LED屏 | 尺寸102cm*54cm單色屏 | |
| 設備支架 | 2m立桿 | |
| 電控箱 | 用于放置遠程遙測終端機、電源 | |
地埋式
| 供電 | AC220V | |
| 供電方式 | 市電或太陽能供電 | |
| 設備功耗 | ≤25 W | |
| 工作溫度 | -40~80℃ | |
| 設備接口 | 接口類型 | 說明 |
| LED屏顯示接口 | 雙色LED顯示屏(最大點數96*16) | |
| 上行485采集 | 485通信距離2000m | |
| 兩路開關量接口(預留) | 電壓輸入范圍:0~5V | |
| 兩路模擬量接口(預留) | 采集范圍:4-20mA、0-5V、0-10V默認4-20mA | |
| 一路水浸檢測(預留) | 可檢測有無水 | |
| 兩路繼電器接口 | 繼電器容量:250VAC/30VDC 3A 一路可設置有源無源,用作報警或自動控制 | |
| 報警設備 | 支持聲光報警 | 支持語音播報 |
| LED屏 | 尺寸102cm*22cm雙色屏 | |
| 設備支架 | 2m立桿 | |
| 電控箱 | 用于放置遠程遙測終端機、電源 | |
通信服務器版
| 供電 | AC220V | |
| 供電方式 | 220V市電(主機可雙供電) | |
| 設備功耗 | ≤25 W | |
| 工作溫度 | -40~80℃ | |
| 設備接口 | 接口類型 | 說明 |
| LED屏顯示接口 | 雙色LED顯示屏(最大點數96*16) | |
| 上行485采集 | 485通信距離2000m | |
| 兩路開關量接口(預留) | 電壓輸入范圍:0~5V | |
| 一路模擬量接口(預留) | 采集范圍:4-20mA、0-5V、0-10V默認4-20mA | |
| 一路繼電器接口 | 繼電器容量:250VAC/30VDC 3A | |
| 報警設備 | 支持聲光報警 | 支持語音播報 |
| LED屏 | 尺寸102cm*22cm雙色屏 | |
| 設備支架 | 2m立桿 | |
| 電控箱 | 用于放置遠程遙測終端機、電源 | |
產品選型
| RS- | 公司代號 | |||
| WDM- | 積水檢測站 | |||
| 100- | 標準版(96*16雙色屏) | |||
| 101- | 標準版(96*48單色屏) | |||
| 200- | 地埋式(配合測點使用) | |||
| 300- | 通信服務器版 | |||
| 4G | 4G上傳 | |||
| ETH | 以太網方式上傳 | |||
系統框架圖
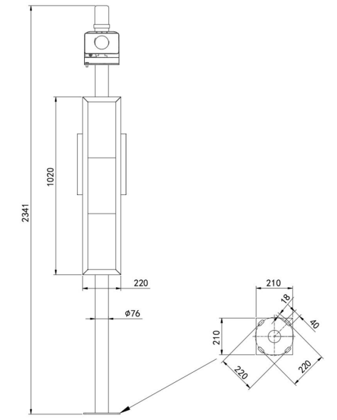
尺寸說明
標準版(96*16雙色屏)

標準版(96*48單色屏)

單位:mm
安裝說明
采集終端安裝
電子水尺設備采用對插線方式,放有遠程遙測終端設備的箱體內引出對應的四芯線,對插安裝即可。
語音播報及光報警器有配套安裝支架,使用對應螺栓安裝在立桿頂部即可
LED屏、電控箱安裝
LED屏背面有螺紋孔,將LED屏放置在立桿上方,使用抱箍固定安裝即可。電控箱使用抱箍安裝LED屏背面。
內部帶有聯網模塊,則在使用時,應當把4G天線從LED箱體底部穿孔拉出,吸附在防水箱外側,防止屏蔽網絡型號傳輸。
接口說明
將電控箱內部出來的供電線母頭和LED屏的供電線公頭對插,同時將LED屏出來的兩孔對插頭接入市電即可。