產品型號:RS-PH-SEN-*
一體式水質離子變送器
多功能快速消解儀
氨氮離子變送器
寬量程工業EC變送器
一體式余氯變送器
手持式水質速測記錄儀
一體式EC變送器
一體式PH變送器
寬量程工業EC控制器
寬量程一體式EC變送器
濁度變送器
COD變送器
產品概述
針對不同的使用環境,建大仁科工業PH傳感器配置六種不同的電極供選擇,分別是常規復合電極、平面脫硫電極、四氟電極、電鍍電極、玻璃電極、銻電極。
功能特點
針對不同環境進行PH監測的系列產品,針對不同的使用環境,我們有不同的探頭與之對應對于工業污水、生活污水、農業、水產養殖、生物工程、制藥、礦物懸浮、煙氣脫硫等環境都有對應產品。
PH測量范圍0~14PH,分辨率0.01PH。
自動溫度補償適用范圍0~80℃。
主要技術參數
| 201 | 常規復合電極,無溫補 | 適用于無腐蝕性弱酸弱堿環境下的工業污水、生活污水、農業、水產養殖行業等場景。 |
| 201T | 常規復合電極,有溫補 | |
| 202 | 平面脫硫電極,無溫補 | 電極測量端為平面,雜質不易粘著,易清洗,適用于脫硫脫硝過程以及粘稠液體的PH測試。 |
| 202T | 平面脫硫電極,有溫補 | |
| 203 | 四氟電極,無溫補 | 采用聚四氟乙烯材質外殼,對化學腐蝕具有高度耐性,可適用于除氫氟酸外的絕大部分溶液。 |
| 203T | 四氟電極,有溫補 | |
| 204 | 電鍍電極,無溫補 | 電極采用雙液接界設計,相比常規復合電極抗污染性更強,適用于電鍍廢水的PH測量。 |
| 204T | 電鍍電極,有溫補 | |
| 205 | 玻璃電極,無溫補 | 純玻璃外殼,適用于不含氫氟酸的強酸強堿溶液或有一定腐蝕性,且對電極堅固程度要求低的測量場景。 |
| 205T | 玻璃電極,有溫補 | |
| 206 | 銻電極,無溫補 | 采用金屬銻作為接觸面,適用于要求電極堅固或還有氫氟酸溶液的測量場合,但電極局限性大,凡與銻有取代作用或生成絡合離子的被測溶液都不宜使用。 |
| 206T | 銻電極,有溫補 |
產品選型
| RS- | 公司代號 | |||
| PH- | 工業PH | |||
| SEN- | 單電極 | |||
| 201 | 常規復合電極,無溫補 | |||
| 201T | 常規復合電極,有溫補 | |||
| 202 | 平面脫硫電極,無溫補 | |||
| 202T | 平面脫硫電極,有溫補 | |||
| 203 | 四氟電極,無溫補 | |||
| 203T | 四氟電極,有溫補 | |||
| 204 | 電鍍電極,無溫補 | |||
| 204T | 電鍍電極,有溫補 | |||
| 205 | 玻璃電極,無溫補 | |||
| 205T | 玻璃電極,有溫補 | |||
| 206 | 銻電極,無溫補 | |||
| 206T | 銻電極,有溫補 | |||
系統框架圖
尺寸說明

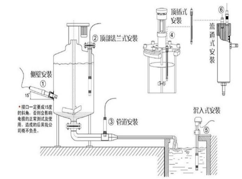
安裝說明
1. 沉入式安裝:PH 電極的引線從不銹鋼管里穿出,PH 電極頂部的 3/4 螺紋與不銹鋼 3/4 螺紋用生料帶相連接。確保電極頂部及電極線不進水。
2. 管道安裝:通過 PH 電極 3/4 的螺紋與管道相連接。

接口說明
說明 | 說明 | |
電 源 | 棕色 | 電源正(10~30V DC) |
黑色 | 電源負 | |
通 訊 | 綠色 | 485-A |
藍色 | 485-B |